住宅・集合住宅・病院・高齢者施設の設計 ,住まい教育
メディス西宮有料老人ホーム
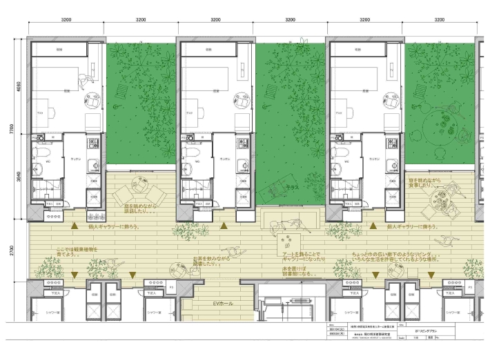
竣工年 2011年 建築主 かんでんジョイライフ 所在地 兵庫県西宮市 面 積 4203.00㎡ 構 造 RC造 規 模 地上5階
Architecture
巽病院 老人保健施設 メディス西宮有料老人ホーム デイケアセンターほほえみ 巽今宮病院 西宮協立脳神経外科病院 西宮協立リハビリテーション 病院 ペイントボックス 内本町Oプロジェクト 正雀Kプロジェクト 九条南バラムビル 靭公園集会所 安治川コールウェアハウス
House
関大前の家 名塩の家 宝松苑の家 小野原の家 箕面の家 守山の家 桃山町の家 明石の家 甲子園の土蔵 豊里の家 NEXT21
More
大阪駅北地区の提案 大阪シティドームプロジェクト 八幡屋公園コンペティション応募案 本町Jプロジェクト 道頓堀Oプロジェクト 大阪ガスNEXT21未来型実験集合住宅提案 泉大津集合住宅設計競技応募案 河内長野木戸集合住宅設計競技応募案 京都町家プロジェクト 宮城県医療福祉中核施設 競技応募案 奈良市民ホール設計競技応募案 岐阜県健康学習センター 設計競技応募案
About Us
プロフィール エッセイ 設計の進め方 設計料について お問い合わせ
Project
建築と子ども 貸しビル
News
イベント 出版
Link
B&B AH87 OSAKA ARCHITECT HOUSE 建築家とともに考える 梅花女子大学生活環境学科塚口建築研究室の記録 建築家の旅 塚口真佐子旧ホームページ 塚口眞佐子ホームページ 建築半島